Stove placement and venting in a new build

  • Active since 1995, Hearth.com is THE place on the internet for free information and advice about wood stoves, pellet stoves and other energy saving equipment.

    We strive to provide opinions, articles, discussions and history related to Hearth Products and in a more general sense, energy issues.

    We promote the EFFICIENT, RESPONSIBLE, CLEAN and SAFE use of all fuels, whether renewable or fossil.

Jbloom

New Member
Jan 7, 2026
4
Ohio
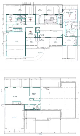
We are planning a new build with a fairly open floor plan. We would like to put a wood burning stove in the basement for supplemental heat. Looking for recommendations for placement and venting. We would like it in the unfinished section of the basement. My initial thought was to put it under the fireplace to share a chimney, but I don't know if that is even a logical thought process.

[Hearth.com] Stove placement and venting in a new build
 
Is this just to heat the basement or to supplement upstairs heating? If the latter, the first question to ask is how is the heat going to get upstairs? Given the size of the home, a good wood furnace might be a better fit. It will need an independent flue system so if the thought is to run the second chimney up alongside the fireplace chimney, the space allocated must be large enough to accommodate the additional chimney with its required clearances.

The unfinished room should still be insulated to reduce heat loss. Otherwise a lot of the heat generated will be heating up the earth surrounding the foundation.
 
It would be supplement the whole house. I guess I have more questions. We were planning on an electric heater so we didn't have to rely on wood all of the time.
 
Consider a good wood furnace with ducting or at least a basement EPA zero clearance fireplace that has the option for ducted heat takeoffs.
 
  • Like
Reactions: NickW
In furnaces, the Drolet Heat Commander II is probably the best value. If choosing a ZC fireplace for 24/7 heat, Pacific Energy's FP30 is a good fit. There's also the Valcourts
 
Is there a good system, or method, that would allow me to run electric heat as primary and supplement with wood through the existing ducting? Sorry for the elementary questions. There is a lot of information out there and I am trying to figure out what's what.

The house is about 3000sqft, most of which is the main floor, there is no second story.
 
Is there a good system, or method, that would allow me to run electric heat as primary and supplement with wood through the existing ducting? Sorry for the elementary questions. There is a lot of information out there and I am trying to figure out what's what.

The house is about 3000sqft, most of which is the main floor, there is no second story.
My FIL installed a dual fuel furnace in his new build 20-25 years ago. I remember him talking about how much he loved the idea of the furnace running on electricity when they went travelling during the winter. His was electric/wood.
 
My FIL installed a dual fuel furnace in his new build 20-25 years ago. I remember him talking about how much he loved the idea of the furnace running on electricity when they went travelling during the winter. His was electric/wood.
My sister has a tri-fuel setup running on wood/oil/or backup electric. They installed this in the mid-1980s. Still running ok, though in milder weather she mostly heats the place with the wood-fired kitchen pizza oven and the attached greenhouse.